Rohbaugrundstück zur Miete in Sant Antoni de Portmany
Sant Antoni de Portmany - REF. 1123

143

1
Vermietet am Dezember de 2025
Beschreibung

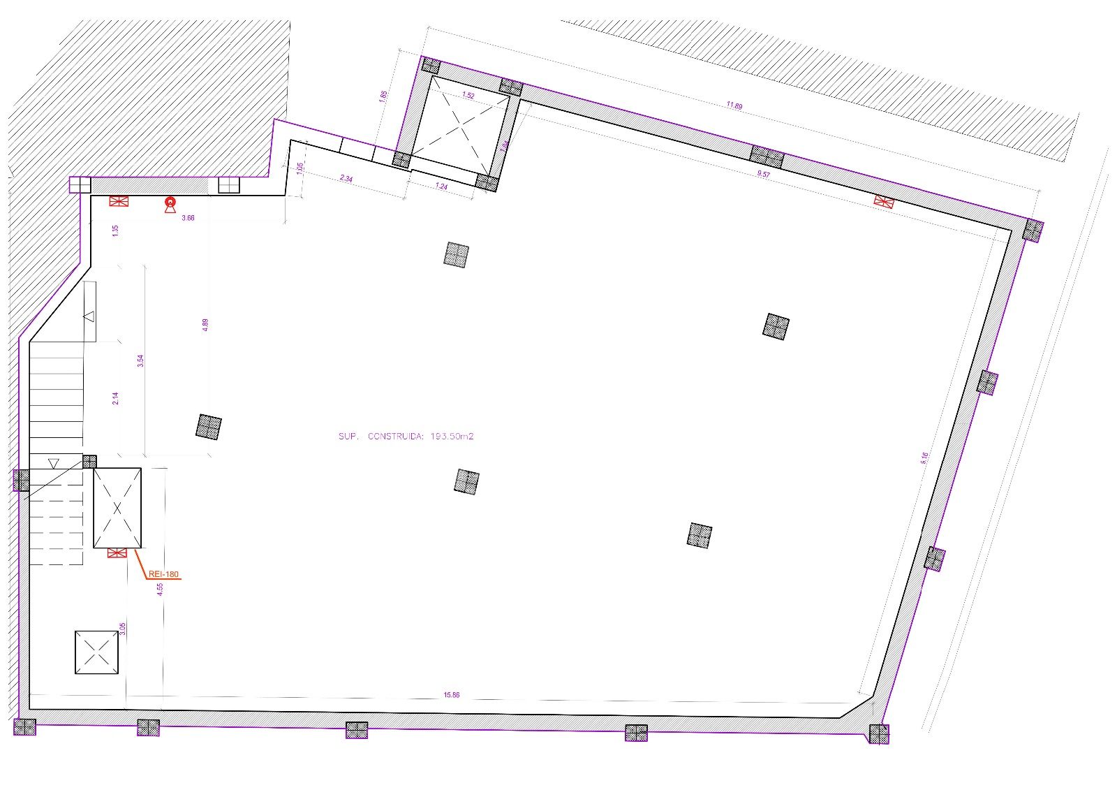
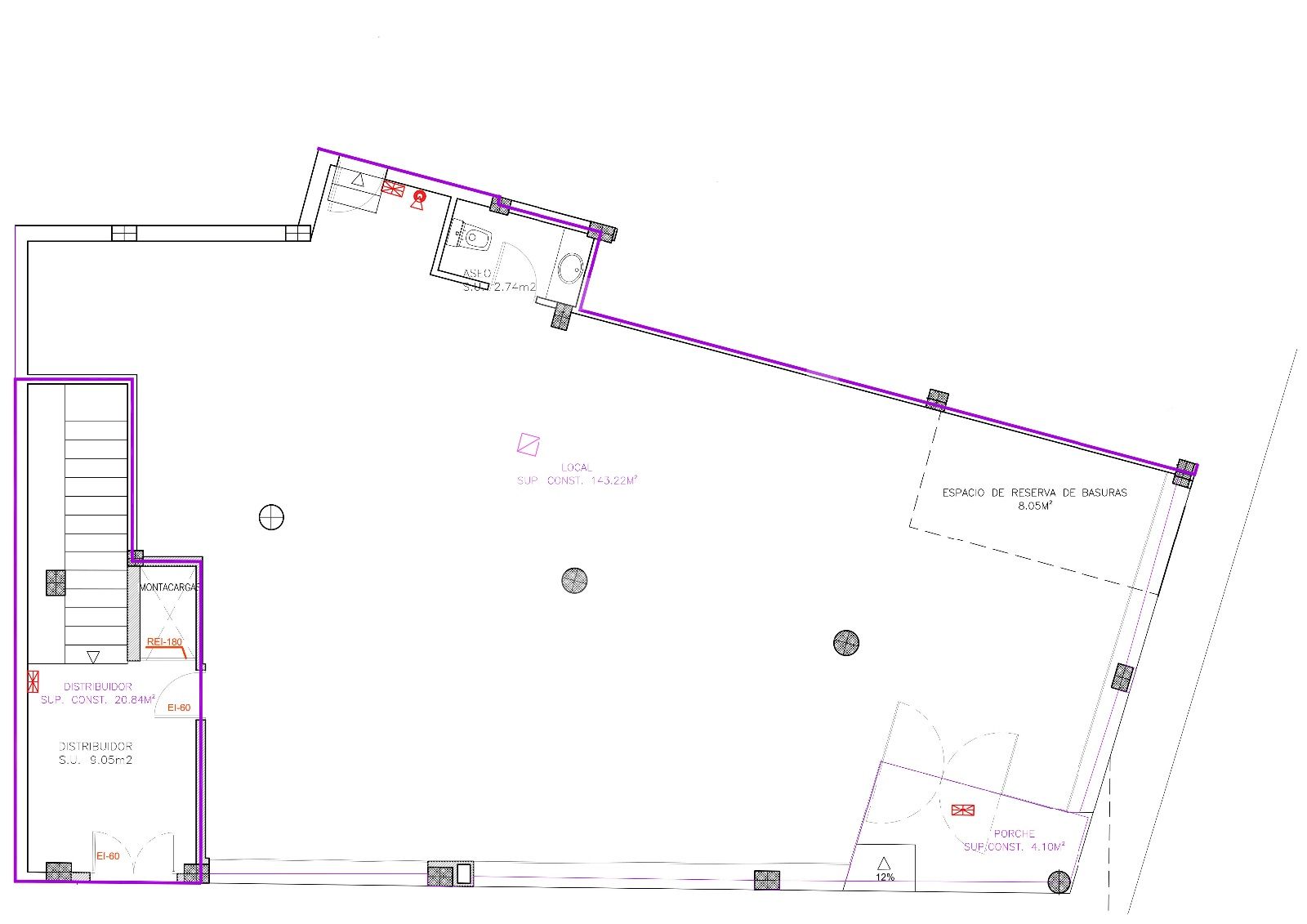
Im Herzen der Stadt Sant Antoni de Portmany, in der Nähe der Kirche, befindet sich dieses Lokal mit 143 m2 und einem Keller von 193 m2. Dieses Ecklokal verfügt über Zugang von einer Fußgängerstraße und einer halbwegs Fußgängerstraße, was es zu einer privilegierten Lage macht. Beim Betreten dieses Raumes kann man sein großes Potenzial erkennen, da es im Rohzustand und völlig offen ist. Diese Eigenschaft bietet die Möglichkeit, das Innere nach den Vorlieben und Bedürfnissen des zukünftigen Mieters anzupassen und zu gestalten. Darüber hinaus ist dieses Geschäftslokal für die Installation eines Lastenaufzugs vorbereitet, was es zu einer idealen Option für Unternehmen macht, die eine effiziente Produktmobilität zwischen Etagen benötigen. Es verfügt auch über eine Rauchabzugsanlage, was die Geschäftsmöglichkeiten für diejenigen erweitert, die eine Küche installieren oder mit Geräten arbeiten müssen, die diesen Service benötigen. Trotz des Rohzustands verfügt das Lokal über ein kleines Badezimmer, was Komfort und Funktionalität für seine zukünftigen Bewohner bietet. Dieses Detail, zusammen mit seiner ausgezeichneten Lage und seinen großzügigen Abmessungen, machen dieses Anwesen zu einer einzigartigen Gelegenheit auf dem Immobilienmarkt der Region.

BLAU Properties Ibiza Real Estate freut sich, dieses Geschäftslokal in einer Fußgängerzone der Stadt zur Miete anzubieten. Unser Team wird Sie gerne während des gesamten Mietprozesses begleiten und eine einzigartige und zufriedenstellende Erfahrung garantieren. Zögern Sie nicht, uns für weitere Informationen zu diesem Geschäftslokal zu kontaktieren.

Wir sind sicher, dass dieses Anwesen alle Ihre Erwartungen erfüllen wird und mehr!

Eigenschaften
Konstruktionsfläche 143 m2
Badezimmer 1
Energieeffizienzklasse (D)
Elektrizität
Wasser
Telefon
Internet

Número de asociado API Balears 94. 
Registro Oficial de Agentes Inmobiliarios de les Illes Balears (ROAIIB): GOIBE620269/2024

BLAU Properties Ibiza Real Estate
Carrer del Far 6, Local 2
07820 – Sant Antoni de Portmany

+34620086628